Let
King Henrys Road
Primrose Hill, NW3 3RP
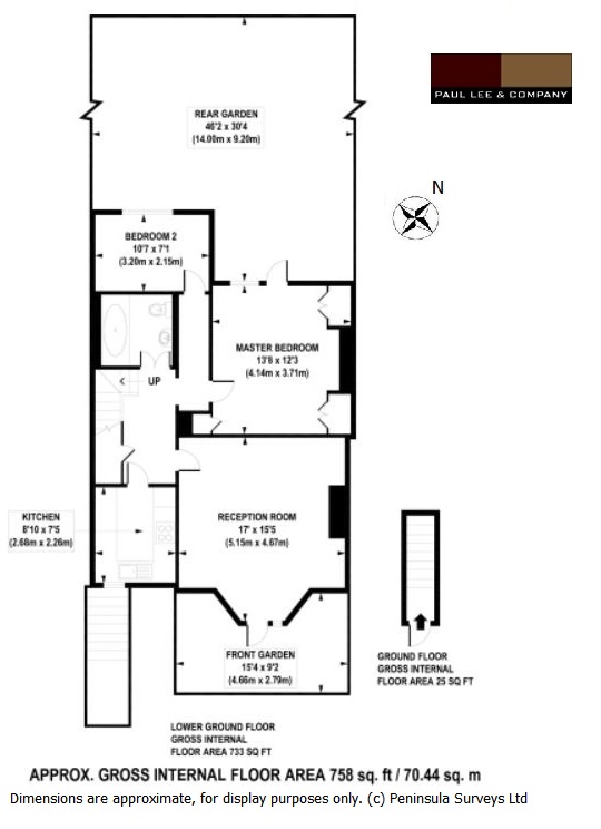
King Henrys Road, Primrose Hill
2 Bedrooms |
1 Reception |
1 Bathroom |
Rear Garden |
Features
- In the heart of Primrose Hill village
- Wood floors
- High ceilings
- Garden
- Unfurnished
A two bedroom garden flat (lower ground floor conversion) set in a Victorian terraced house. Conveniently located for access to the shopping and transport facilities of Primrose Hill village and Chalk Farm northern line underground station. The accommodation comprises of reception dining room with a door to the front patio, fully fitted kitchen, double bedroom with fitted wardrobes, single bedroom/study, bathroom and wc, rear garden, neutral decor, wood and tile floors. Unfurnished. EPC rating D62. Sole Agent. Pets considered.
51.5428
-0.157162







